jueves, 22 de septiembre de 2016
About Me
My name is Karina Pulido, a student coursing architecture 308 with the unique number 00633. I have made this blog to fulfill the Scavenger Hunt assignment. Enjoy!
Uncovering the Basic Facts
Name: Kimbell Art Museum
Location: Ft. Worth, TX
Architect: Louis Kahn and Renzo Piano
Date of Construction: Kahn Building in 1972
Source: kimbellart.org
Identifying the Purpose, Program, and Users
Purpose: To store artwork including the private collection
of Kay and Velma Kimbell
Program: The Kimbell Art Foundation needed a building to
store the old masters collection of Kay and Velma Kimbell. Their collection was
one of the highest quality collections in the Southwest, and thus they
requested a grand structure to store all of the paintings.
Users: Many visitors, students, and art enthusiasts use the
building on a daily basis in order to study/admire its paintings, sculptures,
and pottery. However, the building is also used by the Kimbell Art Foundation
to protect and store the collections.
Source: kimbellart.org
Source: kimbellart.org
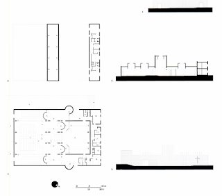
Architectural Drawings of the Kimbell
View from the top of the Kimbell Art Museum
Rough sketches of the Art Museum
Sources: Kimbell Art Museum website (top), and Plans, Sections, and Elevations
Two Photographs of the Exterior
The Kimbell Art Museum Exterior
Dark and Light
The glass windows and doors at the entrance of the Kimbell
allow for just enough light to come in to illuminate it without oversaturating
the interior with excessive sunlight.
Sources: Google Images
A Book Called Plans, Sections, and Elevations
This books talks about the major and most impactful buildings of the 20th century. When talking about the Kimbell Art Museum, it refers to its creator as one that admires light and is aware of its power in the structure of buildings and construction overall. Not only does the building admit light from the glass windows, but the author mentions how Kahn has to also be in contact with the passing clouds and how those affect his building so he decided to create the skylights to allow more of the Texas sunlight into the architecture piece. Essentially, the book does a great job going into specific detail as to how the building is located and what the purpose of every inch of it is.
Source: Plans, Section, and Elevations:Key Buildings of the Twentieth Century
Source: Plans, Section, and Elevations:Key Buildings of the Twentieth Century
Drawing of the Kimbell Museum
This drawing really emphasizes the shape of the museum. Its simple, yet effective, form to let in light from the sky and resembling a larger size is what makes this building one of a kind and a great achievement in architectural history.
Video of the Kimbell Museum
https://www.youtube.com/watch?v=RNOamzl3hXo
This video is a representation of the calm and serene state of this building.
I observed that the museum is made to build a sense of peace because of its big windows and ceiling openings that let the light in. The environment surrounding it is grass, aligned, symmetrical trees that contribute to that peace and stillness that the museum produces.
This video is a representation of the calm and serene state of this building.
I observed that the museum is made to build a sense of peace because of its big windows and ceiling openings that let the light in. The environment surrounding it is grass, aligned, symmetrical trees that contribute to that peace and stillness that the museum produces.
Kimbell Interior
In this picture, the shape of the museum can really be appreciated and it is obvious how its shape is crucial to the picture as a whole. The ceiling makes it look like the space flows and the light color of the walls allows the room to appear larger so that the audience can see the importance of these paintings and how they need a more spacious room to display such beautiful art. The floor is simple but smooth within itself and the overall feel of the room is just a serene emotion.
Source: Google Images
An Interesting Article
In an article by the Business Journals, it was stated that:
1. This museum is one of the most widely known and exceptional architectural successes of the modern era.
2. Since its opening, it has earned praise and claim for being an innovative and classic modern building.
3. And when Kahn built it, he was thinking of "the luminosity of silver" and he wanted to fulfill that through the open ceilings that admit natural light, which changes the intensity of the illumination and creates a sense of change.
Source: Business Journals Article
Source: Business Journals Article
Interview with a First Hand Visitor
Nikolas Xie – a friend – Business Management Major at UT
“The Kimbell Museum is one of my favorite museums to visit
in Ft. Worth. Another close museum is the Ft. Worth Modern Art Museum, and I
believe the Kimbell is far superior; however, to be fair that may have more to
do with my bias towards classical art than modern.
Three Pertinent Facts
1. The Kimbell Art Museum was built after the Yale Art gallery, both made by Louis. I. Kahn, but with different purposes. The Kimbell was made as an institution and as a collection rather than being a more tradition piece like the gallery at Yale was.
2. The Kimbell family that started this museum did not have a place to exhibit their paintings at first. They tried their house, churches, the public library, but the display increased in popularity every time. There weren't enough funds to build a museum at first.
3. Kay Kimbell passed away in 1964 and it wasn't until then that, with his will money, his wife was able to gather enough resources to build a museum in the name of her husband.
Source: The Art Museum of Louis I. Kahn
Loud, Patricia Cummings. "The Kimbell Art Museum." The Art Museums of Louis I. Kahn. Durham: Published by Duke UP in Association with Duke U Museum of Art, 1989. 101-09. Print.
2. The Kimbell family that started this museum did not have a place to exhibit their paintings at first. They tried their house, churches, the public library, but the display increased in popularity every time. There weren't enough funds to build a museum at first.
3. Kay Kimbell passed away in 1964 and it wasn't until then that, with his will money, his wife was able to gather enough resources to build a museum in the name of her husband.
Source: The Art Museum of Louis I. Kahn
Loud, Patricia Cummings. "The Kimbell Art Museum." The Art Museums of Louis I. Kahn. Durham: Published by Duke UP in Association with Duke U Museum of Art, 1989. 101-09. Print.
The Museum's Surroundings
This Google Earth photo shows how the Kimbell can be surrounded by an urban area and still feel calm and peaceful. There may be traffic, people, events, and the light that warms and illuminates it, and the spatial rooms it has still give you a sense of a relaxed stated.
Source: Google Earth
Personal Experience
When
I first visited the Kimbell, I noticed the white, limestone color of the building
outside. The colors made it stand out against the green shrubbery around the
area, which allowed it to feel more subdued and natural. The interior gave off
a natural feel to it as well, with its hardwood floors and minimalist look. One
thing that struck me as interesting was how the natural light illuminated the
museum’s interior. A guide explained to me that most museums make use of
artificial lights because that’s the best way to preserve paintings, but in
order to allow natural sunlight to be used in the museum’s design, Kahn
implemented metal reflectors that go down the middle of the museum’s halls,
that help keep excessive sunlight off the paintings.
Bibliography
Jimrisd. "Kimbell Art Museum
Louis Kahn.wmv." YouTube. YouTube, 23 Nov. 2009. Web. 22 Sept. 2016.
Kimbell Art Museum. N.p., n.d. Web. 19 Sept. 2016.
Loud, Patricia Cummings. "The Kimbell Art Museum." The Art Museums of Louis I. Kahn. Durham: Published by Duke UP in Association with Duke U Museum of Art, 1989. 101-09. Print.
Weston, Richard. Key Buildings of the 20th Century: Plans, Sections and Elevations. New York: W.W. Norton, 2010. Print.
Suscribirse a:
Comentarios (Atom)






